Dallis Designer Homes
  • Discover
    • Floor Plans
    • Move In Ready Homes
    • Communities
  • Design Process
  • Purchase
    • Buying Process
    • Financing
    • Home Building Process
    • Warranty Information
  • About
    • About Dallis Homes
    • The Dallis Difference
    • Contact Us
    • Customer Stories
The Cassandra II

The Cassandra II

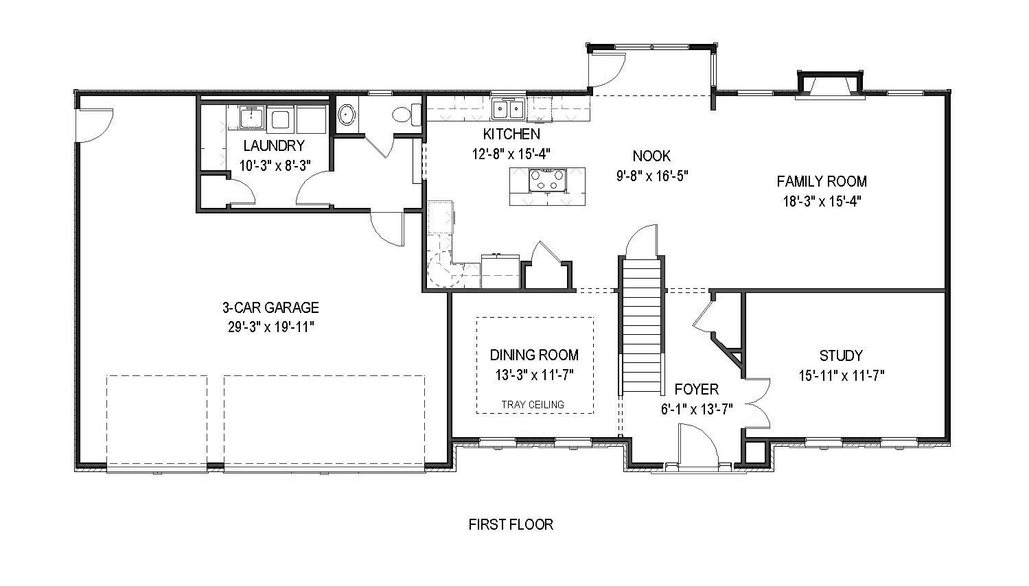
Cassandra II First Floor
Cassandra II Second Floor
Download the brochure for The Cassandra II
Copyright © 2026 Dallis Designer Homes, All rights reserved. Privacy Policy 3895 Woodridge Boulevard, Fairfield, Ohio 45014 513-860-2800